Hausverwaltung Immobilien Diel
Tel: 0221 - 74 01 9 77
E-Mail: kontakt@hausverwaltung-diel.de
Internet: www.hausverwaltung-diel.de
 

Top Kapitalanlage in Rath Heumar

Objektübersicht

Objektart   Mehrfamilienhaus
Adresse   51107 Köln / Rath/Heumar
Objektnummer   3033
Baujahr   1973
Wohnfläche (ca.)   890,65 m²
Vermietbare Gesamtfläche (ca.)   890,65 m²
Grundstücksfläche (ca.)   1.049,90 m²
Kaufpreis   3.300.000,- €
Anzahl Etagen   4
Balkon   ja
Anzahl Stellplätze   16
Freiplatz   Anzahl 16
Energieausweis   Bedarfsausweis
Wesentlicher Energieträger   Pellet
Endenergiebedarf   109,70 kWh / (m²*a)
Energieausweis gültig bis   2031-02-02
Energieausweis Jahrgang   ab dem 1.5.2014
Energieausweis Werteklasse   D
Energieausweis Baujahr   1973
Energieausweis Gebäudeart   Wohngebäude
Anzahl der Einheiten   16.00
Befeuerung   Pellet
Ausstattung   STANDARD
Fahrradraum   ja
Bibliothek   ja
Kabel / Sat-TV   ja
Mieteinnahmen p.a. (IST)   144.000,- €
Mieteinnahmen p.a. (SOLL)   144.000,- €
Zustand   modernisiert

Objektbeschreibung

Das Mehrfamilienhaus in Köln Rath/Heumer ist ein ansprechendes Gebäude.
Das Gebäude selbst zeichnet sich durch moderne Architektur aus und verfügt über große Fenster, die viel Tageslicht hereinlassen. Die Innenräume sind gut geschnitten und bieten ausreichend Platz für Individuelle Gestaltung.
Die Lage ist Zentral und gut erreichbar, was sie ideal für verschiede Nutzungen macht.
Die Umgebung ist geprägt von einer Mischung aus Wohngebieten und Geschäften,
die eine lebendige Nachbarschaft schaffen.

Das Haus wurde 2008 Kernsaniert und erreichte somit einen ENEV -30 Wert


Die Jährlichen Mieteinnahmen liegen bei ca. 134.000EUR

Ausstattung

- alle Wohnungen sind in den Etagen gleich geschnitten ( 3 Zi, Appartement, 2 x 2 Zimmer Wohnungen) im Dachgeschoss sind bis auf das Appartement Dachschrägen + Spitzboden der nicht zu Wohnzwecken dient jedoch ausgebaut ist.)
- Garten zur Allgemeinbenutzung
- Fahrradkeller
- Waschkeller
- Stellplätze zur Anmietung (16Stk im Hof)

Lage

Das Haus befindet sich in einem lebhaften Stadtteil, der eine gute Anbindung an das öffentliche Verkehrsnetz bietet.
Die Umgebung ist geprägt von einer Mischung aus Wohn- und Gewerbeeinheiten, was für eine dynamische Nachbarschaft sorgt. In unmittelbarer Nähe gibt es zahlreiche Einkaufsmöglichkeiten, Restaurants und Cafes,
die den Alltag bereichern. Darüber hinaus bietet die Lage Zugang zu verschiedenen Freizeitmöglichkeiten, darunter Parks und Sporteinrichtungen, die zur Erholung und Freizeitgestaltung einladen. Die Anbindung an die Autobahn ist ebenfalls günstig, was eine schnelle Erreichbarkeit
anderer Stadtteile und umliegender Städte ermöglicht.

Sonstiges

2008 wurden alle Fensterscheiben getauscht. An der Fassade wurde ein Wärmesverbundssystem mit einer 16er Dämmung verbaut, Das Dach wurde vollständig neu eingedeckt.
Der Großteil der Bäder inkl. der Rohrleitungen wurden erneuert und eine Pelletheizung mit Solaranlage verbaut.

Kontaktinformation

Hausverwaltung Immobilien Diel
Silvia Diel
Bremerhavener Str.35
50735 Köln
Tel: 0221 - 74 01 9 77
Fax: 0221 – 74 01 9 76
kontakt@hausverwaltung-diel.de

Ihr Ansprechpartner

Firma

Telefon: 004922177889050
Kontakt@immobilien-diel.de

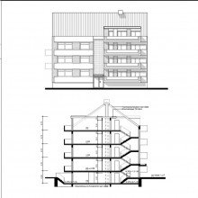
Schnitt 1 Top Kapitalanlage in Rath Heumar
Schnitt 1 
Schnitt 2 Top Kapitalanlage in Rath Heumar
Schnitt 2 
Bad saniert ink. Leitungen Top Kapitalanlage in Rath Heumar
Bad saniert ink. Leitungen 
Bad saniert inkl. Leitung Top Kapitalanlage in Rath Heumar
Bad saniert inkl. Leitung 
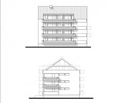
Giebelseite Top Kapitalanlage in Rath Heumar
Giebelseite 
Hofseite Top Kapitalanlage in Rath Heumar
Hofseite 
Front Top Kapitalanlage in Rath Heumar
Front 
Straßenansicht Top Kapitalanlage in Rath Heumar
Straßenansicht 
Beispiel Küche Top Kapitalanlage in Rath Heumar
Beispiel Küche 
Küche Top Kapitalanlage in Rath Heumar
Küche 
Beispiel Schlafzimmer Top Kapitalanlage in Rath Heumar
Beispiel Schlafzimmer 
Beispiel Flur Top Kapitalanlage in Rath Heumar
Beispiel Flur 
Wohnzimmer2 Top Kapitalanlage in Rath Heumar
Wohnzimmer2